Appartement 2ème étage gauche | Allen Keapler & Partners

Réf. 7582453

454.000 €

Appartement 2ème étage gauche

à vendre

Au cœur de la prestigieuse Résidence Marcellis Panorama, Allen Keapler & Partners vous propose une opportunité devenue particulièrement rare : il ne reste plus que 5 appartements disponibles, tous situés entre le 1er et le 3ᵉ étage de l’immeuble.

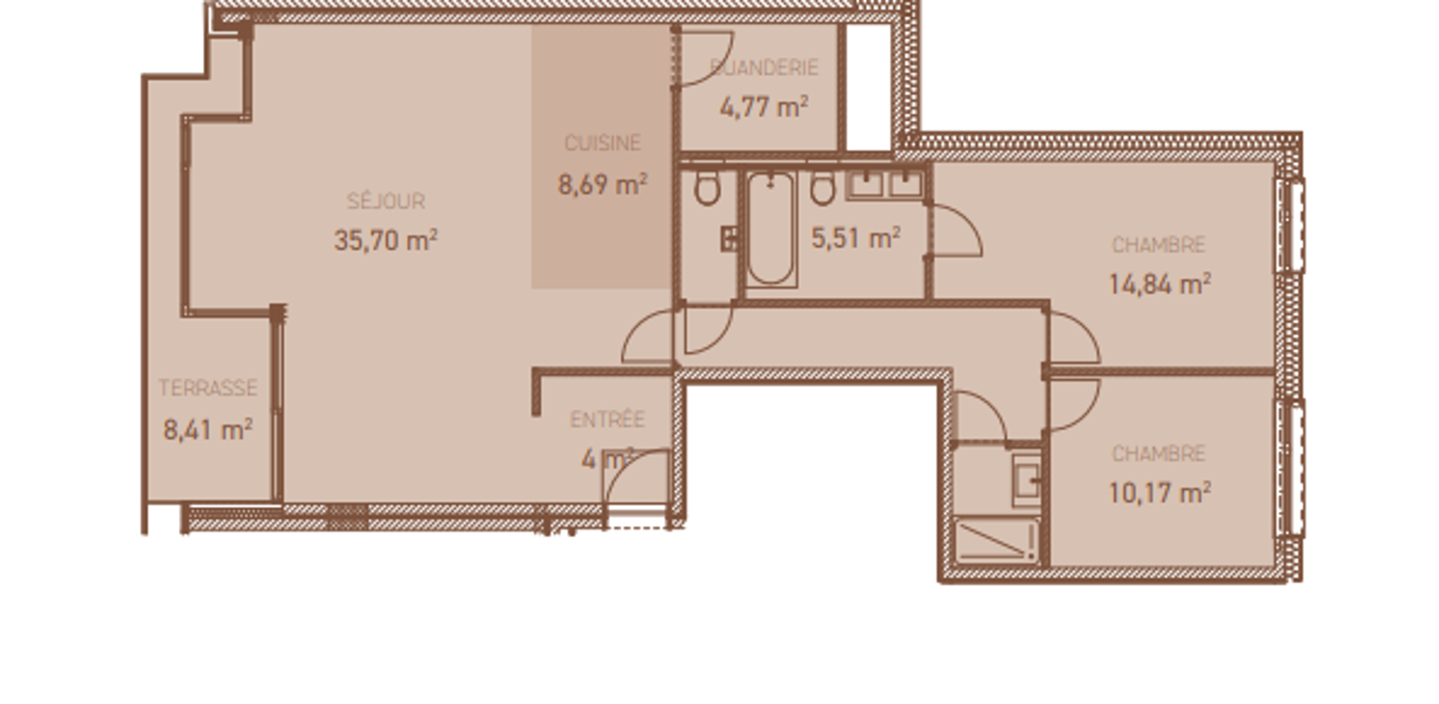
Ces appartements neufs de standing, de type 2 chambres, développent chacun une superficie d’environ 110 m² et offrent des prestations haut de gamme dans un cadre de vie exclusif avec vue dégagée sur la Meuse et les hauteurs de Liège.
Chaque logement se compose d’un vaste séjour lumineux, de deux chambres spacieuses, de deux salles de bains et d’un balcon en façade avant permettant de profiter pleinement de l’environnement.

La configuration intérieure varie selon l’orientation de l’unité, garantissant à chaque appartement une identité propre tout en conservant des standards de qualité identiques.
Conçus selon les dernières normes en matière d’isolation et de performance énergétique, ces biens assurent un confort contemporain durable, complété par des finitions particulièrement soignées.

Cette disponibilité limitée constitue une occasion unique d’acquérir un appartement neuf de standing dans l’une des résidences les plus recherchées de Liège.

La vente est soumise au régime TVA et des présentations personnalisées peuvent être organisées sur rendez-vous dans nos bureaux.

Pour tout renseignement complémentaire, vous pouvez contacter Allen Keapler & Partners au 04 277 17 07 ou par e-mail à info@a-k.be

NOUS CONTACTER

Vue Globale

Type

Appartement

Superficie habitable

110 m²

Façades

2

Nombre de chambres

2

Salles d'eau

2

Toutes les caractéristiques

Intérieur

buanderieOui

chambre 115 m²

chambre 210 m²

Cuisine9 m²

Salle de séjour35 m²

Bâtiment

Nom, catégorie & situation

Equipement de base

En chiffres

Equipement extérieur

Sécurité

Raccordements

Équipements techniques

Spécificités terrain

Caractéristiques Principales

Certificats / Attestations